Zum Verkauf steht eine gepflegte Doppelhaushälfte im Herzen von Taufkirchen (Landkreis Mühldorf am Inn).
Aktuell ist die Immobilie, an sehr sorgfältige Mieter, für eine monatliche Kaltmiete in Höhe von 715,- Euro vermietet. Somit ergibt sich eine Rendite von 2,9 %
Sie betreten Ihr neues Domizil und befinden sich im einladenden Hausflur, links gleich das Gäste-WC sowie die Garderobe, eine Speis finden Sie zur rechten. Eins weiter befindet sich die großzügige Ess-Küche mit Ausgang zur Nord-West-Terrasse. Geradeaus erreichen Sie das gemütliche großzügige Wohnzimmer mit hochwertigem Parkettboden und direktem Zugang zur Terrasse/Garten.
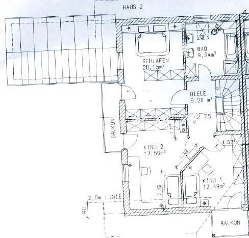
Über die offene Treppe gelangen Sie in das Obergeschoß, es erwarten Sie drei Schlafräume. Eines der Highlights ist der offen gestaltete Sichtdachstuhl das den Räumen mehr Lebensqualität verleiht sowie sind die Zugänge von jedem Schlafzimmer auf eine Balkon. Desweiteren befindet sich das Tageslichtduschbad mit WC und zwei Waschbecken auf dieser Etage.
Die Immobilie ist voll unterkellert, eines dieser Räume ist mit einem Heizkörper ausgestattet.
Die jährlich gewartete Buderus Öl-Heizungsanlage aus dem Jahr 1996 verfügt über 4000 L Fassungsvermögen.
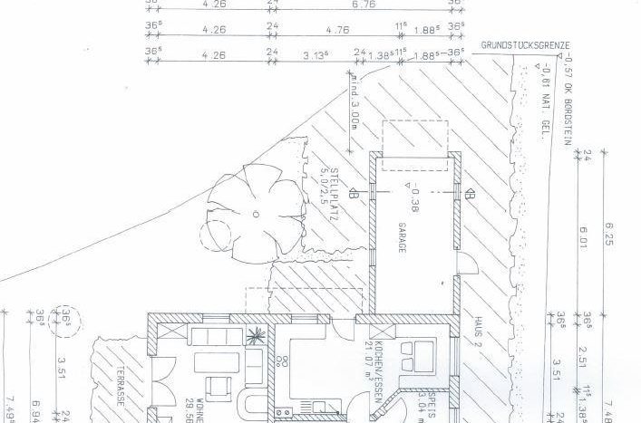
Eine Einzelgarage sowie der Stellplatz im Freien runden das Gesamtbild harmonisch ab.
Gerne vereinbaren wir mit Ihnen einen Besichtigungstermin vor Ort.
Besichtigungszeiten: Am Wochenende nach Absprache sowie Werktags ab 19 Uhr!Taufkirchen hat ca. 1300 Einwohner
Die Entfernung zum Zentrum beträgt ca. 200 m, fußläufig sind Ärzte sowie Läden des täglichen Bedarfs vorhanden.Selbstverständlich eröffnen sich mit dem Erwerb einer Immobilie auch Fragen, die in keinem Exposé beantwortet werden können. Wir stehen Ihnen deshalb gerne und kompetent für nähere Informationen sowie für die Vermittlung eines Besichtigungstermins zur Verfügung. Konnten wir mit diesem Angebot Ihr Interesse wecken? Unser Team ist gerne für Sie da. Rufen Sie uns einfach an oder schreiben uns eine Email. Wir freuen uns auf Ihre Nachricht – Ihr BREHM-Immobilien-Team!
—
Bitte haben Sie Verständnis, dass wir E-Mail-Anfragen nur mit vollständiger Adresse und Telefonnummer weiter bearbeiten können.
—
Weitere Objekte finden Sie auf www.brehm-immobilien.de
—
Gerne sind wir Ihnen auch bei Fragen zur Finanzierung unter service@brehm-immobilien.de behilflich.
—
Alle Angaben zur Objektbeschreibung und zum Exposé im Internet und auf Werbeträgern, stammen vom Eigentümer bzw. Vermieter und wurden von BREHM-Immobilien ungeprüft übernommen. Für Richtigkeit und Vollständigkeit der Angaben wird daher keine Haftung übernommen. Dieses Exposé ist eine Vorinformation. Als Rechtsgrundlage gilt ausschließlich der notariell abgeschlossene Kaufvertrag bzw. Mietvertrag.
Bitte haben Sie Verständnis, dass wir Ihnen die genaue Adresse der Immobilie aus Datenschutzgründen erst auf direkte Anfrage beim jeweiligen Ansprechpartner mitteilen können.
Die angezeigte Position auf der Kartenansicht entspricht nur einem Richtwert. Die tatsächliche Position der Immobilie kann gegebenenfalls abweichen.























